Seeblick Für Investoren & Bauträger

Exklusives Baugrundstück mit Panoramablick auf das Wasser – 2.278 m², Kovářov

Grundstücke

Exposé herunterladen Mehr Infos
Frymburk Lage
2278 m² Größe der Parzelle
auf Anfrage Preis

Exklusives Baugrundstück mit Panoramablick auf das Wasser – 2.278 m², Kovářov

Wir präsentieren Ihnen eines der attraktivsten Baugrundstücke am Lipno-Stausee – mit einem konkurrenzlosen Panoramablick über die weite Wasserfläche und atemberaubenden Sonnenuntergängen.

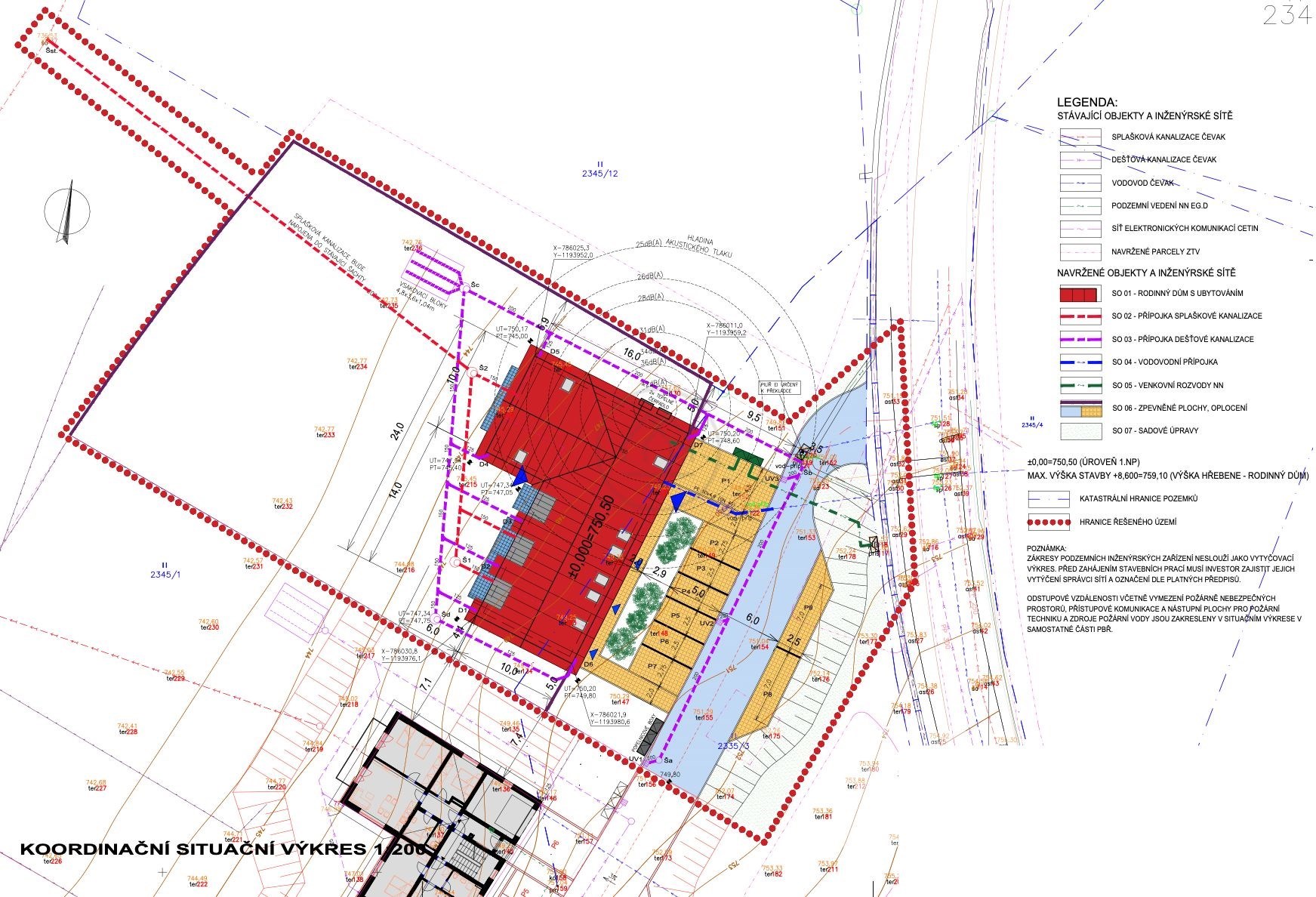
Das Grundstück befindet sich in der renommierten Lage Kovářov – in erster Reihe einer neu entstehenden Wohnsiedlung. Es handelt sich um ein herausragendes und exponiertes Grundstück mit außergewöhnlichem Potenzial für ein luxuriöses Bauprojekt. Dank seiner Hanglage bietet es einen spektakulären Ausblick über die größte Wasserfläche der Tschechischen Republik, die umliegende Landschaft und die entfernten Gipfel des Böhmerwaldes.

Im Kaufpreis enthalten ist eine gültige Baugenehmigung für ein Apartmenthaus mit 7 Einheiten und einem privaten Wellnessbereich. Das Grundstück ist somit sofort baureif – alternativ kann das Projekt auch individuell angepasst werden.

Die Erschließung ist gewährleistet: Strom, Wasser und Kanalisation befinden sich in direkter Nähe zum Grundstück. Die westliche Ausrichtung und die sanfte Hangneigung garantieren ganztägige Sonneneinstrahlung und einen ungestörten Ausblick.

Laut dem gültigen Flächennutzungsplan ist das Areal als gemischtes Wohngebiet mit Nutzung für Wohnen, Dienstleistungen und Freizeitunterkünfte ausgewiesen. Die bebaubare Fläche darf bis zu 50 % des Grundstücks ausmachen. Maximal zulässig sind 2 Vollgeschosse plus ein ausgebautes Dachgeschoss.

In der Nähe – insbesondere im Nachbarort Frymburk – befinden sich sämtliche infrastrukturellen Einrichtungen: Einkaufsmöglichkeiten, Strand, Wellnesshotel, Restaurants, Supermärkte, Geldautomat, Radwege und die wunderschöne Natur des Lipno-Gebiets.

Ihre Vorteile auf einen Blick:

✅ Spitzenlage – eine der besten Adressen am Lipno mit unverbaubarem Seeblick

✅ Gültige Baugenehmigung für ein Apartmenthaus mit 7 Einheiten und privatem Wellness

✅ Versorgungsleitungen (Strom, Wasser, Kanalisation) in unmittelbarer Nähe

✅ Großzügige Grundstücksfläche – ideal für private oder gewerbliche Nutzung

✅ Westausrichtung – optimale Lichtverhältnisse und Sichtverhältnisse

Reservieren Sie sich dieses Grundstück, solange es verfügbar ist, und verwirklichen Sie Ihre Vision vom Leben oder Investieren am Lipno. Gerne laden wir Sie zu einer unverbindlichen Besichtigung ein. Wir bieten umfassende Unterstützung – von der Finanzierung über Genehmigungsverfahren und Bau bis hin zur Verwaltung von Ferienvermietungen.

Nebenkosten beim Kauf: 3% zzgl. MwSt. (21%) Provision und 1,8% deutschsprachiger Rechtsanwalt und Treuhandkosten.

Parameter

Referenznummer: 715995
Typ: Liegenschaft, Gehäuse bauen
Preis: auf Anfrage
Adresse: Frymburk
Strom: An der Grenze
Kanalisation: Stadt
Wasser: Wasserleitung
Größe der Parzelle: 2278 m²

Mappe

Alle in dieser Anzeige enthaltenen veröffentlichten Daten dienen nur zu Informationszwecken und stellen weder ein Angebot im Sinne von § 1731 oder § 1732 BGB dar, noch handelt es sich um ein öffentliches Versprechen im Sinne von § 1733 BGB. Dieses Angebot berechtigt niemanden zu einem Vertrag. Lipno Real s.r.o. vermittelt nach bestem Wissen und Gewissen vom Eigentümer der Immobilie erlangte Daten (Informationen) und übernimmt daher keine Gewähr für deren Vollständigkeit, Richtigkeit und Genauigkeit. Gleichzeitig ist sie nicht befugt, im Auftrag des Eigentümers der Immobilie Verträge im Zusammenhang mit dem Verkauf abzuschließen.

Empfohlene Immobilien

Neu
Wohnungen

Premium-Apartment mit einem Schlafzimmer, Balkon und Panoramablick auf den Lipno-See

2 Zimmer, 36m² | Preis: 173 000 EUR Frymburk
Resort am See
Wohnungen

2-Zimmer Apartment mit Terrasse und Garten – VISION LIPNO

2 Zimmer, 49m² | Preis inklusive 21% Mwst.: 240 790 EUR Frymburk
Neu
Wohnungen

Premium-Apartment 1-Zimmer mit Terrasse und Panoramablick auf den weiten Lipno-See

Ein Zimmer, 32m² | Preis: 160 000 EUR Frymburk
Neu
Wohnungen

Exklusive Maisonettewohnung mit zwei Schlafzimmern in erster Reihe mit Blick auf den Yachthafen.

3 Zimmer, 88.89m² | Preis: 235 000 EUR Lipno nad Vltavou
Neu
Wohnungen

Zweizimmerwohnung in der ersten Reihe mit Balkon und Blick auf die Marina

3 Zimmer, 75m² | Preis: 210 000 EUR Lipno nad Vltavou
Ermäßigte Preise
Wohnungen

3-Zimmer-Apartment mit Terrasse, in Strandnähe – DOKY LIPNO

3 Zimmer, 67.4m² | Preis: 270 000 EUR Lipno nad Vltavou
Neu
Wohnungen

Maisonette-Apartment mit zwei Schlafzimmern und Blick auf den Yachthafen

3 Zimmer, 94m² | Preis: 173 000 EUR Lipno nad Vltavou
Resort am See
Wohnungen

Maisonette 3-Zimmer Apartment mit Balkon – VISION LIPNO

3 Zimmer, 100m² | Preis inklusive 21% Mwst.: 415 030 EUR Frymburk
Ermäßigte Preise
Grundstücke

Baugrundstück mit Naturblick und Baugenehmigung – Bělá, Nová Pec

942m² | Preis: 149 000 EUR Nová Pec
Resort am See
Grundstücke

Baugrundstück für ein Premium-Chalet-Ferienhaus – VISION LIPNO

1128m² | Preis inklusive 21% Mwst.: 247 639 EUR Frymburk
Resort am See
Häuser

Reihenhaus-Einheit mit Terrasse und Garten – VISION LIPNO

3 Zimmer, 117m² | Preis inklusive 21% Mwst.: 501 673 EUR Frymburk
Resort am See
Häuser

Reihenhaus-Einheit mit Terrasse und Garten – VISION LIPNO

3 Zimmer, 117m² | Preis inklusive 21% Mwst.: 601 509 EUR Frymburk
Resort am See
Grundstücke

Baugrundstück für ein Luxus-Chalet – VISION LIPNO

681m² | Preis inklusive 21% Mwst.: 236 458 EUR Frymburk
Resort am See
Grundstücke

Baugrundstück für ein Exclusive-Chalet – VISION LIPNO

1488m² | Preis inklusive 21% Mwst.: 398 931 EUR Frymburk
Neu
Wohnungen

3-Zimmer-Wohnung mit Loggia und Garten

3 Zimmer, 74.8m² | Preis: 255 000 EUR Frymburk
Neu
Grundstücke

Baugrundstück mit 957 m² und Panoramablick – Maňava, Horní Planá

957m² | Preis: 145 400 EUR Horní Planá
Neu
Häuser

Luxushaus mit zwei Wohnungen und großen Grundstücken mitten in der Natur - Vřesná

5+2, 294m² | Preis: 825 000 EUR Frymburk
Neu
Wohnungen

Modernes 1-Zimmer-Apartment mit Balkon und Pool – Na Hůrce

Ein Zimmer, 43m² | Preis: 160 000 EUR Horní Planá
Neu
Grundstücke

Baugrundstück mit 882 m² und Panoramablick – Maňava, Horní Planá

882m² | Preis: 133 300 EUR Horní Planá
Seeblick Für Investoren & Bauträger
Grundstücke

Exklusives Baugrundstück mit Panoramablick auf das Wasser – 2.278 m², Kovářov

2278m² | Preis: auf Anfrage Frymburk
Direkt am See
Grundstücke

Exklusives Baugrundstück direkt am Ufer des Lipno 2107m2 - Frýdava

2107m² | Preis: auf Anfrage Přední Výtoň
Direkt am See
Grundstücke

Baugrundstück Nr. 2 in der ersten Reihe am Wasser - LIPNO LOGGIA

481m² | Preis inklusive 21% Mwst.: 412 000 EUR Frymburk
Seeblick
Grundstücke

Baugrundstück Nr. 15 in zweiter Reihe am Ufer - LIPNO LOGGIA

268m² | Preis inklusive 21% Mwst.: 235 950 EUR Frymburk
Seeblick
Grundstücke

LIPNO STAY – Ihr Sehnsuchtsort am Wasser

1000m² | Preis: auf Anfrage Horní Planá
Grundstücke

LIPNO LIFE - Das letzte Baugrundstück von 1.000 m² direkt am Ufer

1000m² | Preis: auf Anfrage Horní Planá
Resort am See
Häuser

Exklusives Haus am See im Lakeside Village

5 Zimmer, 96m² | Preis: 420 000 EUR Frymburk
Seeblick
Häuser

Haus Nr. 46 mit Terrasse und Balkon am Ufer des Lipno – LAKESIDE VILLAGE

4 Zimmer, 86m² | Preis inklusive 21% Mwst.: 358 000 EUR Frymburk
Wohnungen

Apartment mit zwei Schlafzimmern und Vorgarten in der ersten Reihe – BEACH RESORT

3 Zimmer, 53.7m² | Preis: auf Anfrage Černá v Pošumaví
Für Investoren & Bauträger
Grundstücke

Großflächiges Ackerland und Wiese - 250.353 m2 in Černá v Pošumaví

250353m² | Preis: auf Anfrage Černá v Pošumaví
Grundstücke

Luxus am Ufer des Lipno-Sees - die einzigartigen Baugrundstücke von LIPNO LOGGIA

744m² | Preis: auf Anfrage Frymburk
Resort am See
Grundstücke

Wassergrundstück 123.148 m² – Bližší Lhota – ADALBERT STIFTER HOF

123148m² | Preis: auf Anfrage Horní Planá
Grundstücke

Landwirtschaftliche Fläche 92.549 m²

92549m² | Preis: auf Anfrage Horní Planá
Häuser

Luxushaus mit Blick auf das Wasser

6 Zimmer, 167m² | Preis: 499 000 EUR Lipno nad Vltavou
Resort am See
Grundstücke

Baugrundstück für Reihenhaus– VISION LIPNO

1213m² | Preis inklusive 21% Mwst.: 722 596 EUR Frymburk
Resort am See
Grundstücke

Baugrundstück für ein Doppelhaus – VISION LIPNO

960m² | Preis inklusive 21% Mwst.: 645 075 EUR Frymburk
Resort am See
Wohnungen

3-Zimmer Apartment mit Terrasse und Garten – VISION LIPNO

3 Zimmer, 73m² | Preis inklusive 21% Mwst.: 310 970 EUR Frymburk
Neu
Häuser

Ferienhaus mit drei Schlafzimmern, Terrasse und Seeblick – Horní Planá

4 Zimmer, 89.4m² | Preis inklusive 21% Mwst.: 333 000 EUR Horní Planá
Neu
Häuser

Ferienhaus mit vier Schlafzimmern, Terrasse und Seeblick – Horní Planá

5 Zimmer, 107.5m² | Preis inklusive 21% Mwst.: 374 800 EUR Horní Planá
Neu
Grundstücke

Grundstück mit Wasserblick – 550 m² – Horní Planá

550m² | Preis inklusive 21% Mwst.: 166 300 EUR Horní Planá
Neu
Häuser

Reihenhaus mit drei Schlafzimmern, Terrasse und Garten in Přední Výtoň

4 Zimmer, 122m² | Preis: 349 000 EUR Přední Výtoň
Neu
Grundstücke

Baugrundstück, 371 m², mit Anschluss an die Infrastruktur und Wasserblick – Horní Planá

371m² | Preis inklusive 21% Mwst.: 115 000 EUR Horní Planá
Reserviert
Wohnungen

1-Zimmer-Apartment in der ersten Reihe mit Blick auf den Lipno-See

Ein Zimmer, 28m² | Preis: 125 000 EUR Černá v Pošumaví
Reserviert
Wohnungen

Studio-Apartment mit Terrasse und Seeblick

Ein Zimmer, 41m² | Preis: 149 000 EUR Lipno nad Vltavou

Hier kann Ihre Immobilie
stehen

Kontaktieren Sie uns